5

Votre avant-projet – Maison R+Combles

Vous souhaitez un avant-projet sur mesure ? Vous êtes sur la bonne page !

Vous souhaitez un avant-projet sur mesure ? Vous êtes sur la bonne page !

Notre concepteur de maison Arthur a proposé à ses clients ce projet de maison R+Combles tenant compte de leurs souhaits, de leur budget et des contraintes du terrain (exposition, implantation) ainsi que de l’urbanisme (PLU).

Nous réalisons des Maisons sur mesure et espérons que ce modèle vous servira d’inspiration.

Description de cette réalisation

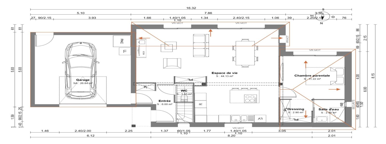
– Superficie : 108 m² habitable + garage de 25m²

– Pièce à vivre avec cuisine ouverte de 47 m² exposée sud-ouest

– Cellier / buanderie

– 3 chambres avec placards intégrés dont une suite parentale

– Salle de bain et WC séparé

  • Respect de la norme énergétique en vigueur (RE 2020)
  • Pose des dernières solutions domotiques
  • Isolation renforcée avec système de chauffage très économique par pompe à chaleur
  • DPE : A / GSE : B
  • Couverture : ardoise artificielle
  • Menuiseries : alu

Nos Maisons sont réalisées dans toute la Normandie. Nous avons acquis un savoir faire et une solide réputation depuis 1979. Toutes nos maisons sont réalisées sous contrat CCMI et vous bénéficiez ainsi de toutes nos garanties.

Contactez nous dès maintenant !

Vous pouvez nous rencontrer au sein de nos différentes agences afin que l’on puisse échanger ensemble sur votre projet. Nous sommes à votre écoute et nous nous adaptons à votre terrain, votre budget, vos envies. Nous pouvons dessiner en direct avec vous les plans de votre future Maison.

Étude gratuite auprès de notre concepteur de maisons sur mesure au 06 28 26 39 67 / contact@lesdemeuresdeprovince.fr

Suivez également nos réalisations et actualités sur nos différents réseaux sociaux :

Pour information

Photos non contractuelles. Projet réalisé pour un de nos clients. Prix maison hors options. Ne comprend pas les aménagements extérieurs et intérieurs (éléments de décoration, mobilier, cuisine équipée). Garanties et assurances obligatoires incluses (voir détails en agence).

Hors raccordements, hors branchements.

Hors frais de notaire du terrain. Terrain sélectionné et vu pour vous sous réserve de disponibilité et au prix indiqué par notre partenaire foncier.

Les Demeures de Province, en quelques chiffres.

1979 Notre année de création
4000 nombre de maisons vendues depuis 40 ans
10 ans de garanties et d'assurances
5 Agences en Normandie

Nos réalisations similaires